Juneau Housing First Project – Addressing Homelessness
Housing First Phase Two
Construction on Housing First Phase 2 begins the second week of June.
The Juneau Housing First Collaborative is very grateful to our supporters, AHFC, CBJ, US HUD, AMHTA, Premera Blue Cross Blue Shield of Alaska, Bartlett Regional Hospital, Juneau Community Foundation, Sealaska, Reitman Family Trust, Juneau Emergency Medical Association, First Bank, Eagle Wings, and individuals and businesses else who have contributed.
According to a project evaluation, being completed by the University of Alaska Southeast, this program makes a difference by reducing emergence services, such as utilization – emergency room, ambulance, interactions with police, and Rainforest Recovery Sleep Off Center.
The Collaborative is looking for $150,000 additional support so they can continue to move forward with construction of the additional 32 housing first units. Please consider donating to this important community project.
See Results from Housing First Phase One: Project Evaluation
Phase Two Press Release: Learn more.
Housing First Phase One

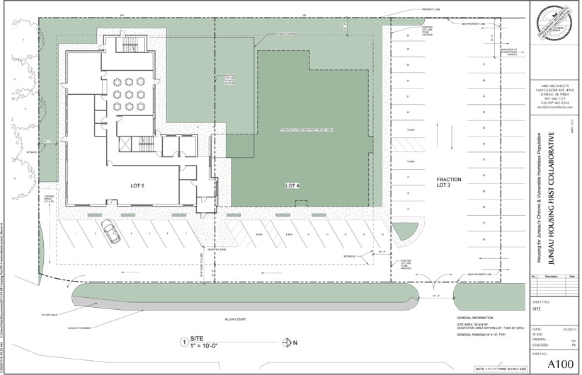
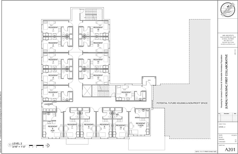
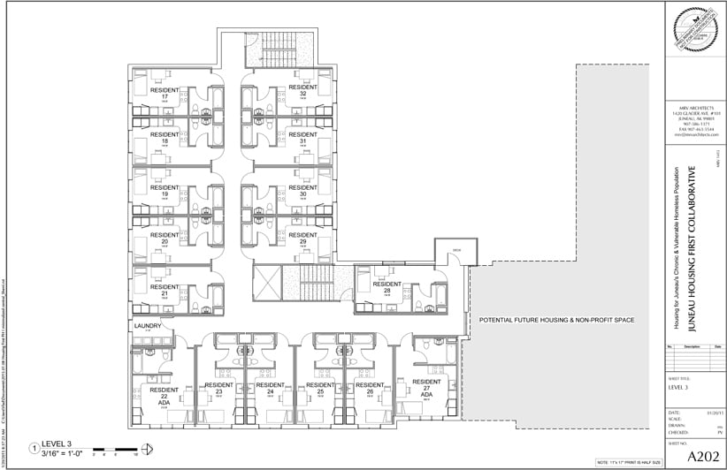
The Juneau Housing First Project will create 32 permanent supportive housing units that target Juneau’s highly vulnerable chronic homeless population who are chemically dependent and exhibit an extensive history of emergency service utilization. Many of these individuals have co-occurring disorders, such as substance abuse and mental health disorders.
The project will provide safe and secure housing to residents in order to facilitate dignified lives, a healthy community, and will provide significant cost savings to the community. This $7.3 million project has been under construction since last spring and expects to open its doors in June 2017. The Juneau Community Foundation is working with the Collaborative to raise the last $200,000. The Juneau Housing First Collaborative is a powerful example of a community effectively pulling together to address a critical social issue.
Juneau’s Housing First Project received a $100,000 donation from the Stanley Reitman Foundation. The Reitman Foundation chose to donate to the Housing First Project because trustees believe it is something trust founder Stanley Reitman would be proud to support.
The Benito and Frances C. Gaguine Foundation has made a $45,000 matching grant pledge for the Juneau Housing First Project. As of March 22, 2017, we have raised $40,087 of the funds, please help us raise the final $5,000 so that we can finish this project on time and open the doors in early summer!
Along with the physical health and safety benefits for the Juneau Housing First Project residents, this project will provide cost savings and other community benefits, including:JUNEAU POLICE DEPARTMENT: Decrease in police contacts, especially in downtown corridor.
CAPITAL CITY FIRE AND RESCUE: Decrease in the number of emergency responses (down from 25 per month)
BARTLETT REGIONAL HOSPITAL EMERGENCY ROOM: Decrease in visits, decrease in frequent users, and housing options for the homeless upon discharge
RAINFOREST RECOVERY CENTER: Decrease in Emergency Service Patrol pick-ups
DOWNTOWN BUSINESSES: Relief to downtown businesses that have incurred costs for increases security and the day to day activities of a centralized homeless population
JUNEAU COMMUNITY: decrease in openly illegal behaviors, trash, and human waste on the streets, increased safety and peace
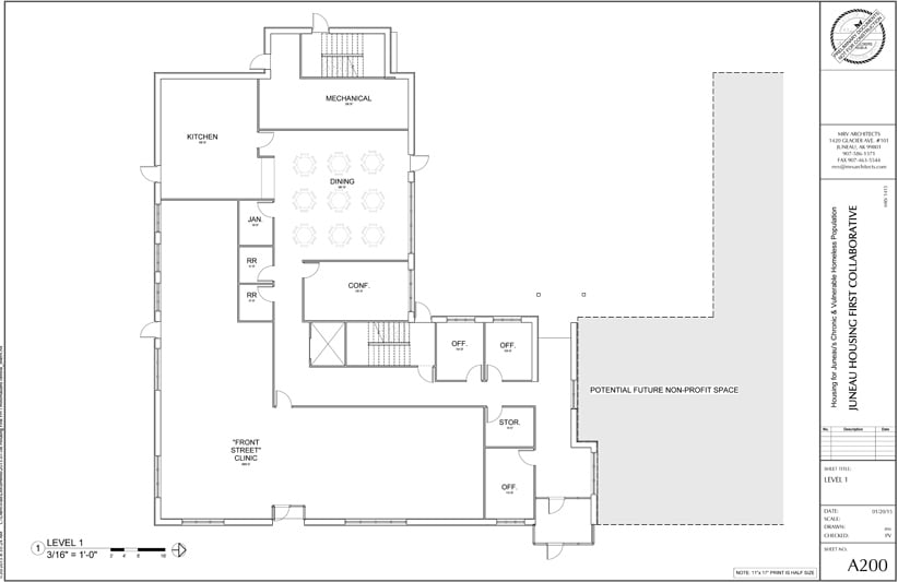
In keeping with Housing First principles, the project will include common space for residents to congregate, a conference room, garden space, laundry, an on-site kitchen and dining room, and staed and secure front desk area.
The project also includes space for the Front Street Community Health Center that provides integrated primary health care, mental health care, and substance abuse treatment services to all in need. The space will include five medical exam rooms, one room for mental health counseling, dental room with two dental chairs, and administrative office space.
The project will also include space for other local non-profit agencies and interested retail partners.
DATA
In Juneau, there are currently no permanent supportive housing options for this population. All other housing options require abstinence or compliance with treatment (JEDC Housing Needs Assessment). With few housing options available, this population has endured extensive periods of homelessness and utilized a high volume of community services through the Juneau Police Department, Fire & Emergency Department, Bartlett Regional Hospital Emergency Room, Rainforest Recovery Center, and Lemon Creek Correctional Facility.
In 2012, the Juneau Housing and Homeless Coalition conducted street outreach efforts to understand this population. Outreach included use of the vulnerability index survey that noted that 40 of 55 people were deemed vulnerable – having a 3 to 4 times greater chance of dying prematurely.
The project will follow Housing First principles, including:
- Residents are moved into shelter without the pre-condition of receiving treatment;
- Housing units will be targeted to the most vulnerable (most disabled, length of time on the streets of Juneau and other Southeast Alaska communities);
- Robust services and supports available on-site;
- Tenancy is not dependent on participation in services;
- Once housed, a harm reduction approach to substance abuse is taken versus an abstinence-based requirement; and
- Residents must have lease agreements and tenant protections.
PROPERTY DONATION
Tlingit-Haida Regional Housing Authority has offered property for the project – 1.25 acres of flat, commercial property with a 100-year lease valued at $1.2 million dollars.
FUNDING SOURCES (CAPITAL, OPERATING, SERVICES)
The Juneau Housing First project will rely on a combination of funds from state and local government, private foundations, and individual contributions.
State Legislative Grant
Juneau Affordable Housing Fund
City and Borough of Juneau
Bartlett Regional Hospital
Juneau Community Foundation
WAYS TO CONTRIBUTE & CONTACT INFORMATION
The Juneau Community Foundation has established the Juneau Housing First Fund for local and private contribution. For more information call (907) 523-5450.
Architectural Drawings of Site, Facility and Floor Plans
Site
Level 1
Level 2
Level 3
Click here to see the Juneau Vulnerability Index Survey results. The Juneau Vulnerability Index was completed in March 2012 to identify the most vulnerable homeless persons who were often not included in the annual Point in Time Homeless Count and Project Homeless Connect.
Downtown Emergency Service Center
COMMUNITY SUPPORT
* Bartlett Regional Hospital
* Juneau Police Department
* City and Borough of Juneau
* Juneau Affordable Housing Commission
* Juneau Coalition on Housing and Homelessness
* Juneau Alliance for Mental Health
* Juneau Community Foundation
* AWARE, Inc.
* Front Street Community Health Center
* Alaska Mental Health Trust Authority
* National Council on Alcoholism and Drug Dependency
(NCADD) * Downtown Improvement Group (DIG)
* Tlingit-Haida Regional Housing Authority
* Sealaska Corporation
* SEARHC
* St. Vincent DePaul Society
* REACH, Inc
* Catholic Community Services




